Tower Type
It is designed as a parking equipment that cage(transporter) is carrying out vehicle automatically by moving up and down to the fixed parking section placing in multiple floors, and called as a parking tower generally.
It is suitable for medium and large size building or parking only building, and fast entrance and exit is advantage.
The position of entrance and exit divides into lower part entrance type and the middle entrance type, and installation form categorizes into independent type and built-in type.
It is suitable for medium and large size building or parking only building, and fast entrance and exit is advantage.
The position of entrance and exit divides into lower part entrance type and the middle entrance type, and installation form categorizes into independent type and built-in type.

Outstanding space efficiency, simple control and management
The best space efficiency with Higher for space efficiency with 1.61m of floor height, control operation situation at a glance by integrated management touch screen
Built-in turntable
It is easy and possible to forward entrance
and exit by built-in turntable.
Computer integrated management
Operation situation could control at a glance
with touch screen and simple control is possible.
Free Cell method
It is the nation’s first developed Free Cell method and sedan and SUV could store and exit
without selecting exclusive sections.

High speed vector control lifting system
It is possible to control precisely because a premium inverter controls motor speed

Low noise, high strength roller equipment
AJ Automated Parking Systems uses independently developed premium roller.
The premium roller has 20% of vibration and noise reduction effect comparing with other companies and its average lifespan is relatively higher due to its strong durability.
The premium roller has 20% of vibration and noise reduction effect comparing with other companies and its average lifespan is relatively higher due to its strong durability.

Integral Lifter structure
It is possible to operate the system in high speed due to integral lifter structure and when transferring to parking lot from lifter, there is low rate of failure because of non-step pulley.

The nation’s first developed Free Cell method
It is possible to operate the system quickly as free cell type doesn’t have designated pallet for RV(Recreational Vehicle and Sedan.
Standard Feature of Tower Type
- Built-in type and lower entrance type
- Built-in type and lower entrance type (SUV is acceptable partially)
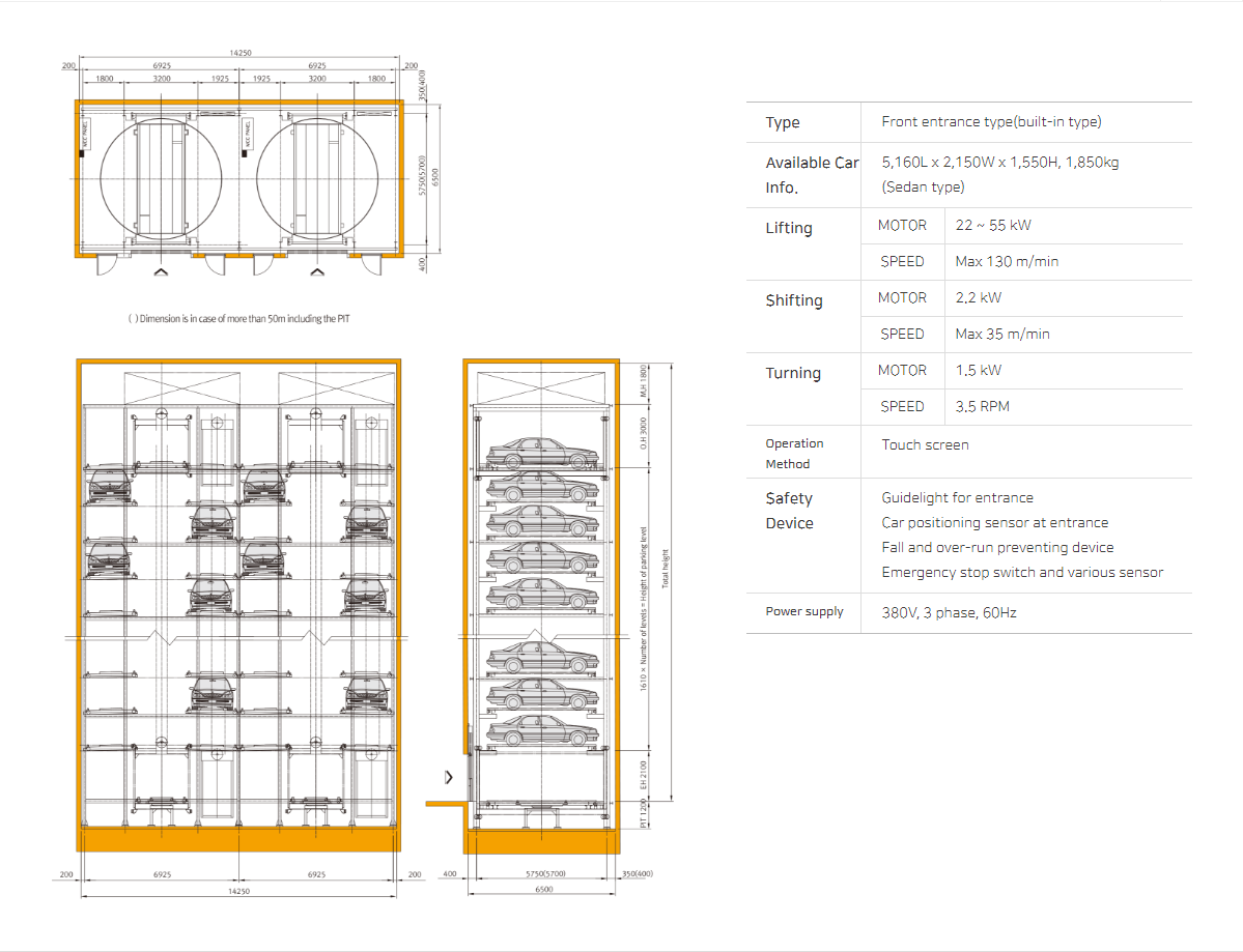
- Built-in type and middle entrance type
- Built-in type and middle entrance type (SUV is acceptable partially)
- Stand-alone type and lower entrance type
- Stand-alone type and lower entrance type (SUV is acceptable partially)
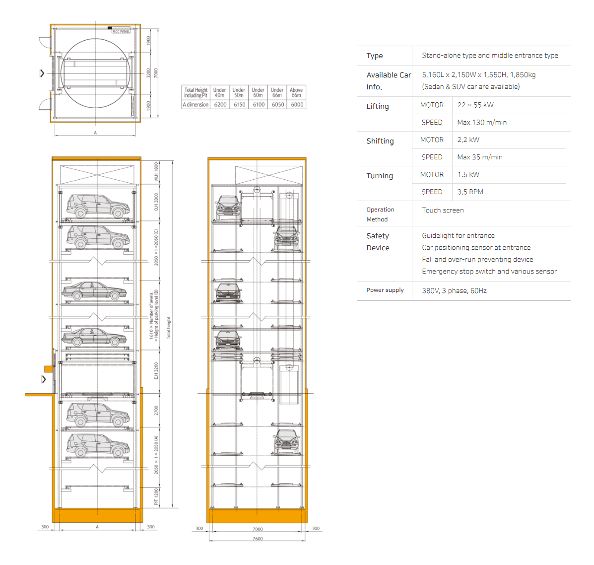
- Stand-alone type and middle entrance type
- Stand-alone type and middle entrance type (SUV is acceptable partially)
- Built-in type and lower entrance type
- Built-in type and lower entrance type (SUV is acceptable partially)









