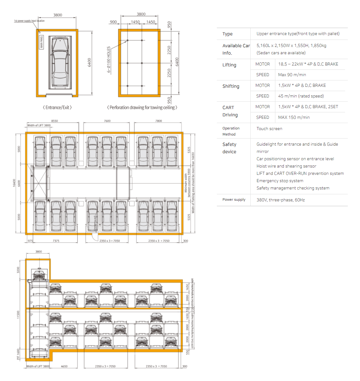
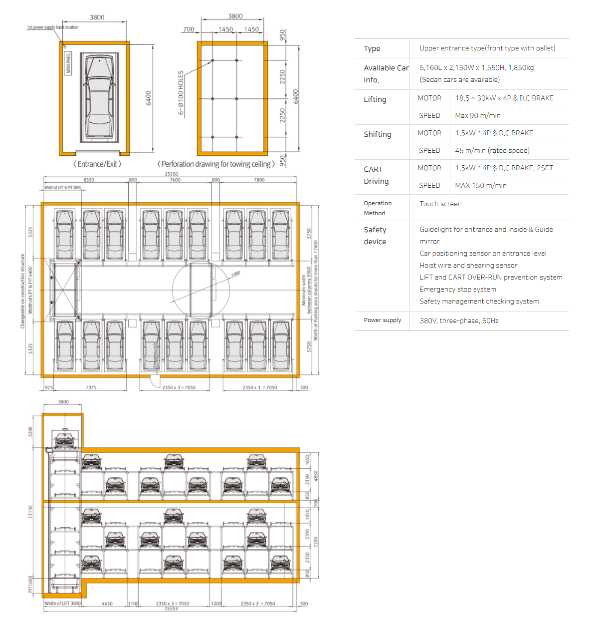
Cart Type
It is designed that vehicle is moved by up and down movement of lift and plane shuttle movement of transporter(cart) to the parking area which is arranged as plane type. It is suitable for large- scale building due to its capacity which is up to thousands of cars. Moreover, more than two cars could be possible to enter or exit at the same time, and lengthwise type and breadthwise type could be chosen depending on the site condition.

More safely by low vibration and low noise design
Noise and vibration has been minimized by advanced technology of AJ Automated Parking Systems and faster and safer movement is possible.
WIRE ROPE lifting driving system
More than 20 times of safety ratio is applied and
it is possible to fast and safe movement
without additional positioner.
Computer integrated management
Operation situation could control at a glance with
touch screen and simple control is possible.
Triple safety device
The vehicle damage is prevented by stopper,
vehicle centering, and vehicle grip device on LIFT CART.

CART transfer system
When entrance and exit of pallet in cart, picking device attached on the cart goes into the parking space pallet and drag it. It is stable entrance and exit of vehicle without diagonal movement of pallet.







